產品中心
聯系我們
- 佘雪梅 13641502138
- 常州市武進區牛塘鎮湖濱南路93號
潛水攪拌機
產品概述 Product Overview
常州鵬展減速機械廠(原常州江泰減速機械廠)是生產各種傳動減速機裝置的專業工廠,本廠生產的擺線針輪減速機是采用行星式傳動原理及擺線針齒齒合的新穎傳動機械.廣泛應用于冶金、礦山、起重、運輸、石油、化工、紡織、制藥、食品、輕工等工業部門的減速裝置。
1.潛水攪拌機的概述
QJB潛水攪拌機是我公司開發的一種新穎潛水型攪拌機,可分為高速混合攪拌機和低速推流攪拌機兩大系列。其具有結構緊湊、操作維修簡單、安裝檢修方便、使用壽命長等特點。選用的電機防護等級為IP68、繞組絕緣等級F級并具有防凝露裝置,優良的軸承,兩道機械密封,使該機型工作可靠。
該機型葉輪有較佳的水力設計結構,工作效率高,后掠式葉片具有自潔功能,可防止雜物纏繞、堵塞。混合攪拌機適用于污水處理廠和工業流程中攪拌含有懸浮物的液體;低速推流攪拌機適用于工業和城市污水處理廠的曝氣池,產生的低切向流的強力水流,可應用于循環、硝化、脫氮和除磷階段創建水流等。
該機型能正常連續運轉的適用范圍有:1.介質溫度不超過40℃;2.介質的PH值在5?9之間;3.液體密度不超過1150Kg/m3;4.長期潛水運行,潛水深度一般不超過20m。
2.型號表示
QJB 1.5/8—400/3—740—S
攪拌器材質代號 S:不銹鋼 C:鑄鐵 P:聚氨酯
攪拌機每分鐘轉速
攪拌器直徑/數量
電機功率/極數
潛水攪拌機簡稱
3.產品圖樣

鑄鐵混合潛水攪拌機 不銹鋼混合潛水攪拌機 低速推流攪拌機
4.QJB潛水攪拌機的結構、選型及主要參數

混合潛水攪拌機 低速推流攪拌機

5.QJB潛水攪拌機的主機及安裝系統尺寸





鑄鐵混合潛水攪拌機 不銹鋼混合潛水攪拌機 低速推流攪拌機
4.QJB潛水攪拌機的結構、選型及主要參數

混合潛水攪拌機 低速推流攪拌機

5.QJB潛水攪拌機的主機及安裝系統尺寸




說明:
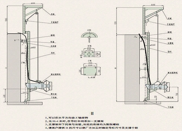
以上為安裝潛水攪拌機的幾種常用的安裝方式,這些安裝方式可在無需排除池中污水的情況下快速裝卸,并安全可靠;我們還可以提供其他安裝辦法和指導。
潛水攪拌機的潛水深度可以根據用戶需求進行垂直上下調節。吊架座、支撐和下托架與池的連接均為膨脹螺栓固定,無需預留孔。客戶訂貨時,請提供池深H,以便我公司生產時確定導軌尺寸及支撐架的數量。
注意事項:1.安裝時導軌應與水平面垂直,可采用鉛垂校正;2.起吊時潛水攪拌機葉輪端較水平面應上仰5o;3起吊中心和潛水攪拌機的起吊中心處于同一垂直線上。
6.QJB潛水攪拌機的流場圖
以下流速場是在清水中,邊界水流速度為V=0.1m/s工況下:









